
Keller Einfamilienhaus Typ Florenz
Nutzfläche: 75,17 m²

Erdgeschoss Einfamilienhaus Typ Florenz
Wohnfläche
| WC | 3,46 m² |
| Diele | 12,64 m² |
| Kochen | 8,31 m² |
| Gast | 7,99 m² |
| Wohnen Essen | 37,51 m² |
| Wohnfläche gesamt | 69,93 m² |

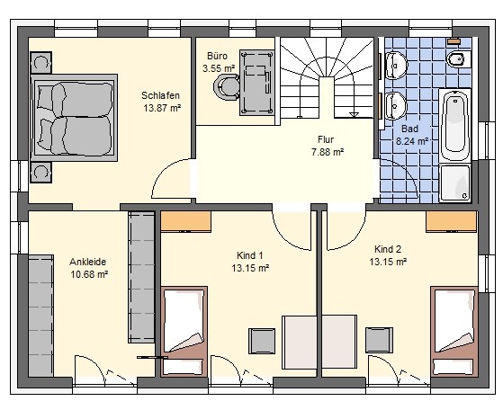
Obergeschoss Einfamilienhaus Typ Florenz
Wohnfläche:
| Bad | 8,24 m² |
| Kind 1 | 13,15 m² |
| Kind 2 | 13,15 m² |
| Ankleide | 10,68 m² |
| Schlafen | 13,87 m² |
| Büro | 3,55 m² |
| Flur | 7,66 m² |
| Wohnfläche gesamt | 70,30 m² |

Auf einem schönen Grundstück in 92348 Berg bei Neumarkt, planen wir den Neubau von einem Einfamilienhaus Typ "Florenz".
Baubeginn 2025
Das Haus wird von unserem Architekten individuell nach Ihren Wünschen geplant.
Das heißt, Sie können Grundriss, Raumaufteilung und Optik selbst mitgestalten!
Baubeginn nach Wunsch, Fertigstellung nach ca. 9 bis 10 Monaten.
Gern können Sie eine Besichtigung in unserem Musterhaus vereinbaren.
Bei diesem Neubauprojekt zzgl. Baunebenkosten von ca. 30.000,-Euro
(je nach Grundstücksbeschaffenheit)
Zu den Baunebenkosten zählen:
- Bau- evtl. Teilungsgenehmigung,
- Bauversicherung,
- Vermessung,
- Anschlüsse für Kanal, Wasser, Strom, Kommunikation
- Einrichtung und Verbrauch von Baustrom und Bauwasser
- Abfuhr von überschüssigem Erdaushub
- u.a.
Ausstattung
- Das Haus wird mit Markenprodukten und geprüften Baustoffen in hoher Qualität errichtet
- Massivbauweise „Stein auf Stein“
- Außenwände wahlweise Ziegel oder Kalksandstein mit Vollwärmeschutz
- Heizkosten sparen mit:
- Energieeffizienter Luft/Wasser Wärmepumpe
- Fußbodenheizung im Erdgeschoss und Obergeschoss
- Hochwertig gedämmte Gebäudehülle
- die Dämmstoffe der Gebäudehülle werden in der besonders hochwertigen Wärmeleitgruppe (WLG) 0,35 ausgeführt
- 160 mm Wärmedämmverbundsystem WLG 0,35 durch diese Ausführung werden in der Gebäudehülle Wärmebrücken minimiert
- 3-fach Verglasung der Fenster mit „warmer Kante“ gegen Schwitzwasser
- Keller komplett wärmegedämmt mit 140 mm XPS- Perimeterdämmung WLG 0,35
- Estrich im Keller mit extra starker 100 mm Wärmedämmung
- Keller aus wasserundurchlässigem Beton mit Baustahlarmierung gemäß Statik
- Blower-Door-Test zur Überprüfung der Luftdichtigkeit
- auch die Malerarbeiten und Bodenbeläge sind dabei
- auch im Keller wird ein Innenputz ausgeführt
- umfangreiche Elektroausstattung von Busch-Jaeger mit Rauchmelder
- NEU! Photovoltaikanlage mit Batteriespeicher bereits enthalten
- Eigenleistung und Sonderwünsche sind möglich
- Individuelle Planung mit unserem Architekt
- ein Energieausweis wird nach der Werkplanung erstellt
- Energieeffizienzhaus gemäß GEG in der Standardausführung
- Weitere Details finden Sie in unserer Bau- und Leistungsbeschreibung
Seit 1994 Erfahrung am Bau garantiert Beständigkeit, Zuverlässigkeit und Qualität!
Sonstiges:
Die Firma H+L- Immobilien & Wohnbau ist seit 31 Jahren im Hausbau tätig, im Raum Nürnberg, Altdorf, Neumarkt wurden unsere Häuser hundertfach gebaut.
Planung und Bauleitung kommt aus einer Hand, nur ein Ansprechpartner!
Wir arbeiten ausschließlich mit grundsoliden Handwerksbetrieben aus der Region!
Vereinbaren Sie einen Termin in einem unserer Musterhäuser!
Rufen Sie an 09181/488233!
WICHTIG: Wenn Sie per Mail anfragen, teilen Sie uns bitte unbedingt Ihre VOLLSTÄNDIGE Anschrift und Ihre TELEFONNUMMER mit, da Ihre Anfrage sonst nicht beantwortet werden kann!
Vielen Dank.