Haus Smart 2 mit Bodenplatte
Wohnen auf einer Ebene, mit Einfamilienhaus „Smart 2" mit Bodenplatte ist das möglich!

Objektbeschreibung
Wir bauen auf Ihr Grundstück in bewährter Massivbauweise Stein auf Stein mit Bodenplatte zum Beispiel Einfamilienhaus „Smart 2“ mit schönem Satteldach zum Festpreis!
Wohnfläche im Erdgeschoss 78,20 m²
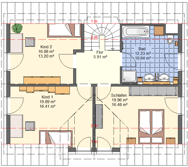
Wohnfläche im Obergeschoss 62,64 m²
Wohnfläche gesamt 135,27 m²
In traditionellem und zugleich modernem Bauhausstil präsentiert sich das Haus Typ „Smart 2“. Die bodentiefen Fenster sorgen für viel Platz und lichtdurchflutete Räume.
Ein perfekt abgestimmtes Raumkonzept sorgt für behagliche Wohnqualität.
Im Erdgeschoss erwartet Sie ein großes Wohn- Esszimmer, mit viel Platz für die ganze Familie. Die Küche erweitert das großzügige Raumangebot.
Ein Gäste Bad mit Dusche Waschtisch und WC ergänzen das Raumangebot im Erdgeschoss.
Durch das Gästezimmer / Schlafzimmer im Erdgeschoss, ist das Wohnen auf einer Ebene möglich!
Im Obergeschoss mit seinen gemütlichen Dachschrägen, ist viel Platz und Stellfläche für Mobiliar.
Zwei helle Kinderzimmer mit bodentiefen Fenstern, ein Schlafzimmer, ein Badezimmer mit Badewanne, zwei Waschtischen und WC komplettieren das Raumangebot.
Mehrere verschiedene Häuser aus unserem Programm stehen Ihnen zur Auswahl!
Das Haus wird von unserem Architekten individuell nach Ihren Wünschen geplant.
Das heißt, Sie können Grundriss, Raumaufteilung und Optik, die Größe und Lage der Fenster selbst mitgestalten!
Die Wohnflächen sind durch Hausverbreiterung erweiterbar.
Baubeginn nach Wunsch, Fertigstellung nach ca. 8 bis 9 Monaten.
Sie erhalten geprüfte Qualität zum Festpreis von regionalen Handwerksbetrieben.
Ausstattung
- Das Haus wird mit Markenprodukten und geprüften Baustoffen in hoher Qualität errichtet
- Massivbauweise „Stein auf Stein“
- Außenwände wahlweise Ziegel oder Kalksandstein mit Vollwärmeschutz
- auch die Malerarbeiten und Bodenbeläge sind dabei!
- Heizkosten sparen mit:
- Energieeffizienter Luft/Wasser Wärmepumpe
- Fußbodenheizung im Erdgeschoss und Obergeschoss
- Hochwertig gedämmte Gebäudehülle
- die Dämmstoffe der Gebäudehülle werden in der besonders hochwertigen Wärmeleitgruppe (WLG) 0,35 ausgeführt
- 160 mm Wärmedämmverbundsystem WLG 0,35 durch diese Ausführung werden in der Gebäudehülle Wärmebrücken minimiert
- extra starke 230 mm Dachdämmung WLG 0,35, dadurch gutes Raumklima auch bei sommerlicher Hitze
- Bodenplatte wärmegedämmt
- 3-fach Verglasung der Fenster mit „warmer Kante“ gegen Schwitzwasser
- Fenster mit super Dämmwert Ug 0,6 W/m²K, das spart Heizkosten!
- Fensterprofiltiefe 80 mm mit 6-fach Kammersystem
- Blower-Door-Test zur Überprüfung der Luftdichtigkeit
- umfangreiche Elektroausstattung von Busch-Jaeger mit Rauchmelder
- Eigenleistung und Sonderwünsche sind möglich
- Individuelle Planung mit unserem Architekt
- ein Energieausweis wird nach der Werkplanung erstellt
- Energieeffizienzhaus 55 gemäß GEG in der Standardausführung
- Weitere Details finden Sie in unserer Bau- und Leistungsbeschreibung
Seit 1994 Erfahrung am Bau garantiert Beständigkeit, Zuverlässigkeit und Qualität!
Sonstiges
Die Firma H+L- Immobilien & Wohnbau ist seit 32 Jahren im Hausbau tätig, im Raum Nürnberg, Altdorf, Neumarkt wurden unsere Häuser hundertfach gebaut.
Wir arbeiten ausschließlich mit grundsoliden Handwerksbetrieben aus der Region!
Vereinbaren Sie einen Termin in einem unserer Musterhäuser!
Herr Lehmann erwartet Sie Tel. 09181/488233
Weitere Angebote und Bilder unserer Häuser rauf unserer Homepage unter www.HLimmobilien.de