Doppelhaushälften Neubau in 90537 Feucht, Schottenfeld 32
Wir bauen in bewährter Massivbauweise Stein auf Stein mit Keller Doppelhaus Typ 112 Junges Wohnen mit schönem Satteldach zum Festpreis!
Das angegebene Grundstück ist im Kaufpreis enthalten.
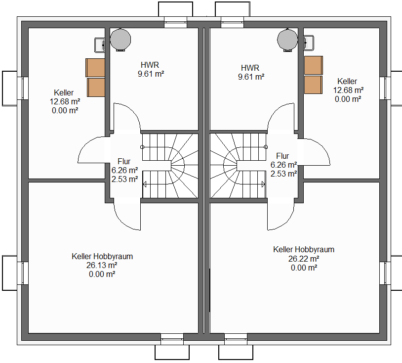
Geplant ist ein Haus mit Keller.
Musterhaus zu besichtigen! Terminvereinbarung unter Tel. 09181/488233
In traditionellem und zugleich modernem Bauhausstil präsentiert sich das Haus Typ 112 Junges Wohnen. Die großen Fenster sorgen für viel Platz und lichtdurchflutete Räume.
Ein perfekt abgestimmtes Raumkonzept sorgt für behagliche Wohnqualität.
Im Erdgeschoss erwartet Sie ein großes Wohn- Esszimmer, mit viel Platz für die ganze Familie. Die Küche erweitert das großzügige Raumangebot.
Ein Gäste WC mit Waschtisch und WC ergänzen das Raumangebot im Erdgeschoss.
Im Obergeschoss, ist viel Platz und Stellfläche für Mobiliar.
Zwei helle Kinderzimmer mit bodentiefen Fenstern, ein Schlafzimmer, ein Badezimmer mit Badewanne, Dusche, Waschtisch und WC komplettieren das Raumangebot.
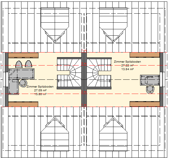
Das Dachgeschoss ist komplette ausgebaut und bietet reichlich Wohnfläche.
Lage:
Feucht zählt zu den beliebtesten Wohnlagen im Nürnberger Süden.
Schöne ruhige Wohnlage. Gute Verkehrsanbindung Autobahnanschluss
in ca. 2 km. Bahnverbindung ist zu Fuß in erreichbar.
Die Terrasse ist nach Süden ausgerichtet.
Verkehrsanbindung:
gut ausgebautes Straßennetz B8, Autobahnanschluss A9 nach Nürnberg, und München
Versorgungsangebote:
Kindergarten, in Grund- und Hauptschule Realschule Gymnasium vor Ort, Allgemein- und Fachärzte, Apotheke, gute Einkaufsmöglichkeiten, reichhaltiges Sport- und Kulturangebot.
Gern können Sie eine Besichtigung in unserem Musterhaus vereinbaren.
Bei diesem Neubauprojekt zzgl. Baunebenkosten von ca. 30.000,- Euro
(je nach Grundstücksbeschaffenheit)
Zu den Baunebenkosten zählen:
- Bau- evtl. Teilungsgenehmigung,
- Bauversicherung,
- Vermessung,
- Anschlüsse für Kanal, Wasser, Strom, Kommunikation
- Einrichtung und Verbrauch von Baustrom und Bauwasser
- Abfuhr von überschüssigem Erdaushub
- u.a.
Ausstattung:
- Das Haus wird mit Markenprodukten und geprüften Baustoffen in hoher Qualität errichtet
- Massivbauweise „Stein auf Stein“
- Außenwände wahlweise Ziegel oder Kalksandstein mit Vollwärmeschutz
- Heizkosten sparen mit:
- Energieeffizienter Luft/Wasser Wärmepumpe
- Fußbodenheizung im Erdgeschoss und Obergeschoss
- Hochwertig gedämmte Gebäudehülle
- die Dämmstoffe der Gebäudehülle werden in der besonders hochwertigen Wärmeleitgruppe (WLG) 0,35 ausgeführt
- 160 mm Wärmedämmverbundsystem WLG 0,35 durch diese Ausführung werden in der Gebäudehülle Wärmebrücken minimiert
- 3-fach Verglasung der Fenster
- Bodenplatte wärmegedämmt mit 120 mm XPS- Perimeterdämmung WLG 0,35
- Blower-Door-Test zur Überprüfung der Luftdichtigkeit
- auch die Malerarbeiten und Bodenbeläge sind dabei
- umfangreiche Elektroausstattung von Busch-Jaeger mit Rauchmelder
- Neu! Photovoltaikanlage mit Batteriespeicher bereits enthalten
- Eigenleistung und Sonderwünsche sind möglich
- Individuelle Planung mit unserem Architekt
- ein Energieausweis wird nach der Werkplanung erstellt
- Energieeffizienzhaus gemäß GEG in der Standardausführung
- Weitere Details finden Sie in unserer Bau- und Leistungsbeschreibung
Seit 1994 Erfahrung am Bau garantiert Beständigkeit, Zuverlässigkeit und Qualität!