
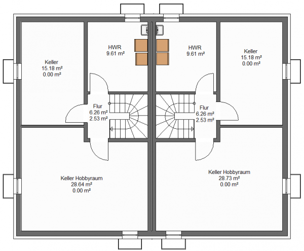
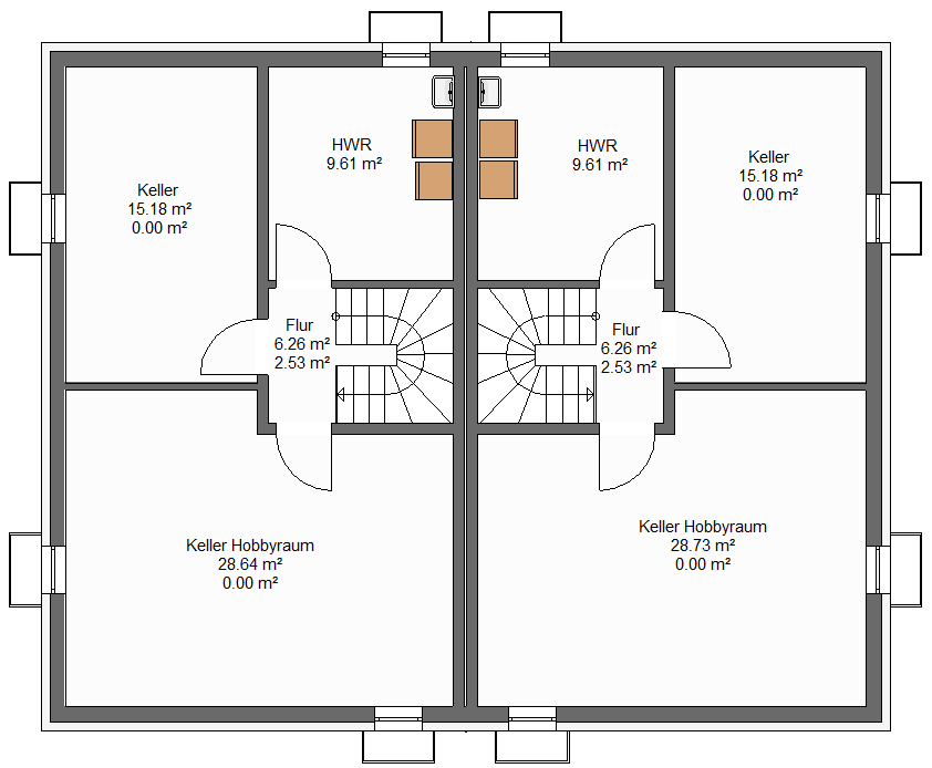
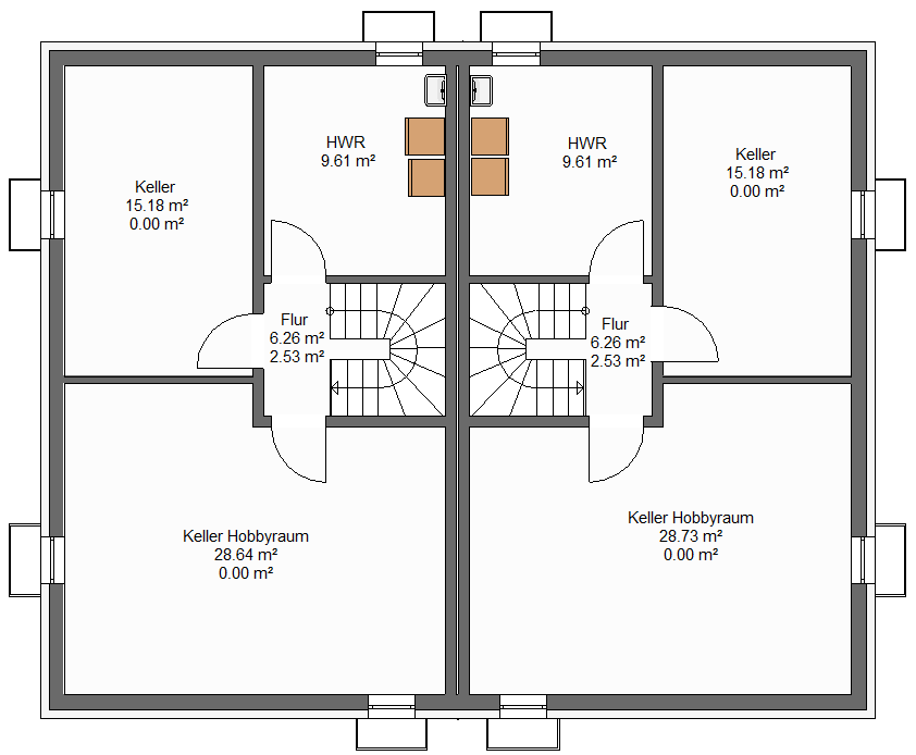
Keller Nutzfläche 55,96 m²

Erdgeschoss 54,14 m²

Obergeschoss 53,73 m²

Dachgeschoss Spitzboden 35,89 m² Wohnfläche
Doppelhaushälften Neubau im Zentrum von 92348 Berg bei Neumarkt.
Wir bauen in bewährter Massivbauweise Stein auf Stein mit Keller Doppelhaus Typ „Janic" mit schönem Satteldach zum Festpreis!
Das angegebene Grundstück ist im Kaufpreis enthalten.
Musterhaus zu besichtigen! Terminvereinbarung unter Tel. 09181/488233
In traditionellem und zugleich modernem Bauhausstil präsentiert sich das Haus Typ „Janic". Die großen Fenster sorgen für viel Platz und lichtdurchflutete Räume.
Ein perfekt abgestimmtes Raumkonzept sorgt für behagliche Wohnqualität.
Im Erdgeschoss erwartet Sie ein großes Wohn- Esszimmer, mit viel Platz für die ganze Familie. Die Küche erweitert das großzügige Raumangebot.
Ein Gäste WC mit Waschtisch und WC ergänzen das Raumangebot im Erdgeschoss.
Im Obergeschoss ohne Dachschrägen, ist viel Platz und Stellfläche für Mobiliar.
Zwei helle Kinderzimmer mit bodentiefen Fenstern, ein Schlafzimmer, ein Badezimmer mit Badewanne, Dusche, Waschtisch und WC komplettieren das Raumangebot.
Der Spitzboden ist bereits ausgebaut und bietet reichlich Wohnraum.
Lage
Die Gemeinde Berg ist eine der größten Gemeinden des Landkreises Neumarkt, die mit ihren Ortsteilen rund 8.000 Einwohner zählen darf.
Das Ortszentrum verfügt über mehrere Ärzte der Allgemeinmedizin, modernes Ärztehaus, Zahnärzte, eine Apotheke, Banken, zahlreiche Einzelhandelsgeschäfte, gut fundierte mittelständige Betriebe, eine Tankstelle, ein Hallenbad und viele gastronomische Lokalitäten.
Darüber hinaus liegt Berg mit der Anschlussstelle Neumarkt in knapp 2 km verkehrsgünstig an der Autobahn A 3 (Nürnberg-Regensburg), nur rund 21 km von Nürnberg entfernt; bis Neumarkt sind es ca. 7 km, bis Altdorf 11 km.
Das Grundstück liegt in direkt im Ortszentrum mit kurzen Wegen zu allen Versorgungsangeboten.
Gern können Sie eine Besichtigung in unserem Musterhaus vereinbaren.
Bei diesem Neubauprojekt zzgl. Baunebenkosten von ca. 30.000,- Euro
(je nach Grundstücksbeschaffenheit)
Zu den Baunebenkosten zählen:
- Bau- evtl. Teilungsgenehmigung,
- Bauversicherung,
- Vermessung,
- Anschlüsse für Kanal, Wasser, Strom, Kommunikation
- Einrichtung und Verbrauch von Baustrom und Bauwasser
- Abfuhr von überschüssigem Erdaushub
- u.a.
Ausstattung:
- Das Haus wird mit Markenprodukten und geprüften Baustoffen in hoher Qualität errichtet
- Massivbauweise „Stein auf Stein“
- Außenwände wahlweise Ziegel oder Kalksandstein mit Vollwärmeschutz
- Heizkosten sparen mit:
- Energieeffizienter Luft/Wasser Wärmepumpe
- Fußbodenheizung im Erdgeschoss und Obergeschoss
- Hochwertig gedämmte Gebäudehülle
- die Dämmstoffe der Gebäudehülle werden in der besonders hochwertigen Wärmeleitgruppe (WLG) 0,35 ausgeführt
- 160 mm Wärmedämmverbundsystem WLG 0,35 durch diese Ausführung werden in der Gebäudehülle Wärmebrücken minimiert
- 3-fach Verglasung der Fenster
- Bodenplatte wärmegedämmt mit 120 mm XPS- Perimeterdämmung WLG 0,35
- Blower-Door-Test zur Überprüfung der Luftdichtigkeit
- auch die Malerarbeiten und Bodenbeläge sind dabei
- umfangreiche Elektroausstattung von Busch-Jaeger mit Rauchmelder
- Eigenleistung und Sonderwünsche sind möglich
- Individuelle Planung mit unserem Architekt
- ein Energieausweis wird nach der Werkplanung erstellt
- Energieeffizienzhaus gemäß GEG in der Standardausführung
- Weitere Details finden Sie in unserer Bau- und Leistungsbeschreibung
Seit 1994 Erfahrung am Bau garantiert Beständigkeit, Zuverlässigkeit und Qualität!