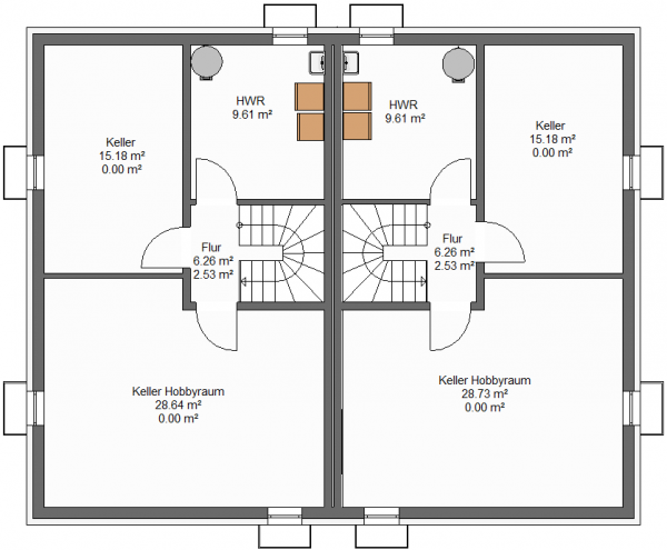
Doppelhaus 123 "Junges Wohnen" MH - Untergeschoss

Nutzfläche: 55,96 m²
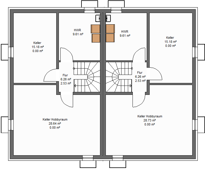
Doppelhaus 123 "Junges Wohnen" MH - Untergeschoss

Nutzfläche: 55,96 m²
Doppelhaus 123 "Junges Wohnen" MH - Erdgeschoss

Wohnflächenberechnung:
| WC |
2,12 m2
|
| Diele |
9,82 m2
|
| Kochen |
11,23 m2
|
| Wohnen/Essen |
30,97 m2
|
| Wohnfläche |
54,14 m2
|
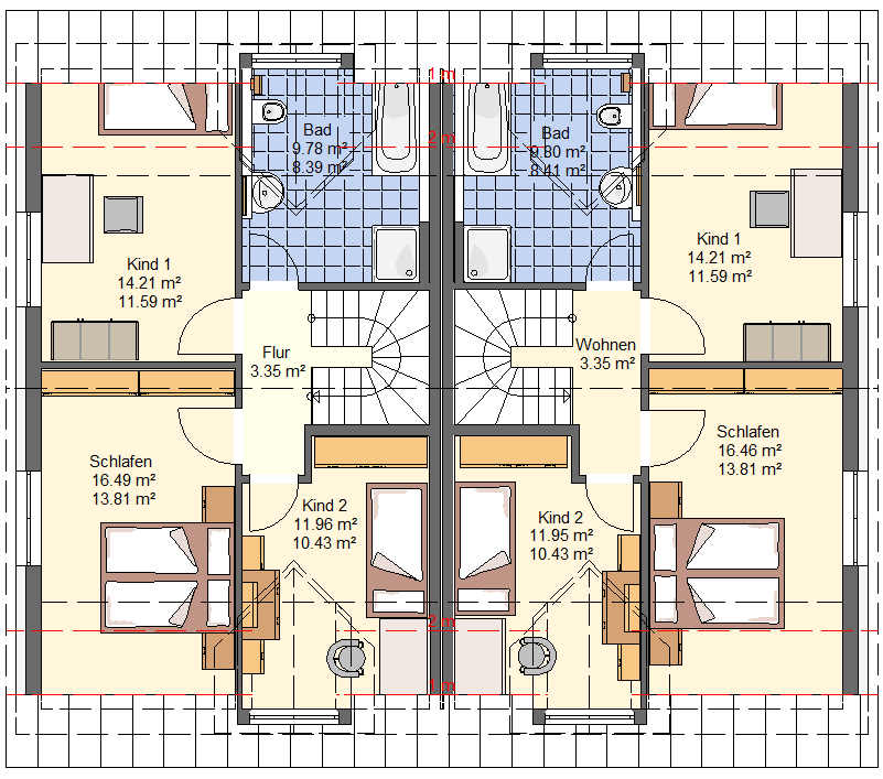
Doppelhaus 123 "Junges Wohnen" MH - Obergeschoss

Wohnflächenberechnung:
Grundfläche ist die nutzbare Fläche ohne Flächenabzug unter den Dachschrägen
Wohnfläche gemäß Wohnflächenverordnung mit Flächenabzug unter den Dachschrägen
| Bad | 9,94 m² | 8,52 m² |
| Kind 1 | 14,21 m² | 11,59 m² |
| Kind 2 | 11,87 m² | 10,43 m² |
| Schlafen | 16,49 m² | 13,81 m² |
| Flur | 3,34 m² | 3,34 m² |
| Grundfläche | 55,85 m² | |
| Wohnfläche | 47,63 m² |
Doppelhaus 123 "Junges Wohnen" MH - Dachgeschoss

Wohnflächenberechnung:
| Nutzfläche | 29,86 m² |
| Wohnfläche | 15,93 m² |
Doppelhaus 123 "Junges Wohnen" MH

Grundrisse Hausbreite 6,72 m x 10,95 m
Wohn- und Nutzflächenberechnung:
| Grundfläche EG und OG | 109,66 m² | |
| plus Spitzboden | 29,86 m² | |
| Wohnfläche EG und OG | 101,68 m² | |
| plus Spitzboden | 15,39 m² | |
| Grundfläche gesamt | 139,85 m² | |
| Wohnfläche gesamt | 117,07 m² | |
| Nutzfläche im Untergeschoss | 55,96 m² | |
| Umbauter Raum | 687 m³ |