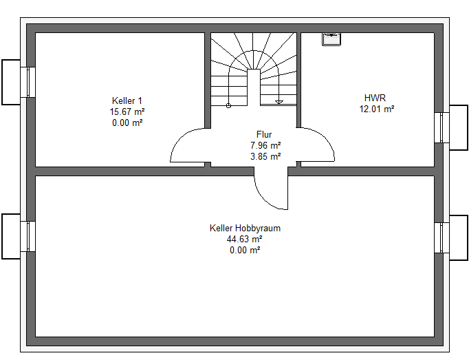
Untergeschoss Einfamilienhaus Smart 2

Nutzfläche: 76,16 m²
Untergeschoss Einfamilienhaus Smart 2

Nutzfläche: 76,16 m²
Erdgeschoss Einfamilienhaus Smart 2

| Dusche / WC | 4,04 m² |
| Diele / Garderobe | 16,13 m² |
| Küche | 12,28 m² |
| Wohnen / Essen | 28,41 m² |
| Hauswirtschaftsraum | 4,29 m² |
| Gast | 11,96 m² |
| Wohnfläche | 77,21 m² |
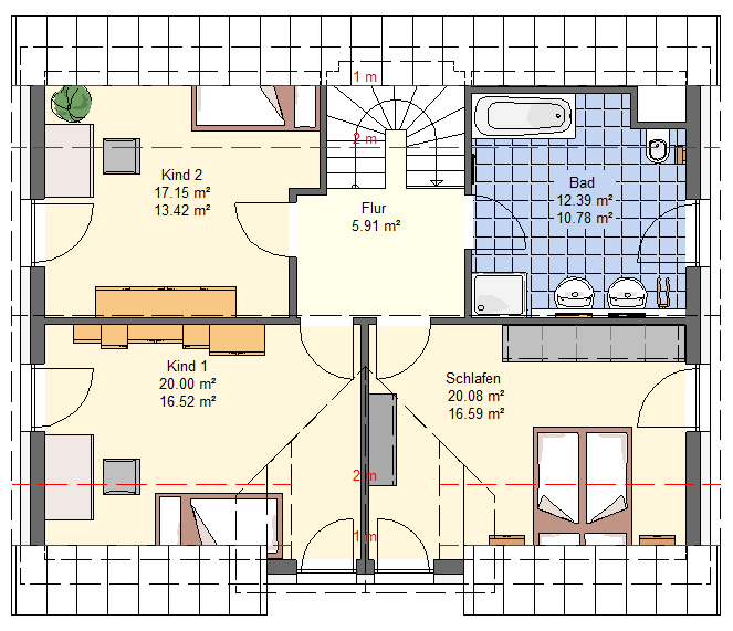
Obergeschoss Einfamilienhaus Smart 2

Grundfläche ist die nutzbare Fläche ohne Flächenabzug unter den Dachschrägen
Wohnfläche gemäß Wohnflächenverordnung mit Flächenabzug unter den Dachschrägen
| Bad | 12,39 m² | 10,78 m² |
| Kind 1 | 20,00 m² | 16,52 m² |
| Kind 2 | 17,15 m² | 13,42 m² |
| Schlafen | 20,08 m² | 16,59 m² |
| Diele | 5,91 m² | 5,91 m² |
| Grundfläche | 75,53 m² | |
| Wohnfläche | 63,22 m² |
Einfamilienhaus Typ Smart 2 mit Keller

Grundrisse Hausbreite 11,33 m x 8,83 m
Wohn- und Nutzflächenberechnung:
| Wohnfläche Erdgeschoss | 77,21 m² |
| Grundfläche Obergeschoss | 75,53 m² |
| Grundfläche Total | 152,74 m² |
| Wohnfläche Total | 140,43 m² |
| Nutzfläche im Untergeschoss | 76,16 m² |
| Überbaute Fläche | 100,05 m² |
| Umbauter Raum | 877,00 m² |