EFH Nicole Untergeschoss

Nutzfläche : 76,39 m²
EFH Nicole Untergeschoss

Nutzfläche : 76,39 m²
EFH Nicole Erdgeschoss

Wohnflächenberechnung:
| WC | 4,07 m² |
| Garderobe / Diele | 13,45 m² |
| Küche | 16,28 m² |
| Gast / Arbeiten | 8,99 m² |
| Wohnen / Essen | 28,10 m² |
| Wohnfläche | 70,89 m² |
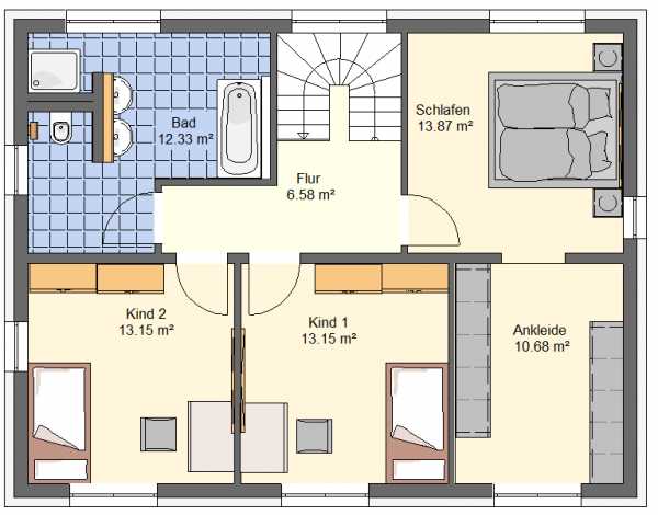
EFH Nicole Obergeschoss

Wohnflächenberechnung:
| Bad | 12,66 m² |
| Kind 1 | 13,15 m² |
| Kind 2 | 13,15 m² |
| Ankleide | 10,86 m² |
| Schlafen | 13,87 m² |
| Diele | 6,68 m² |
| Wohnfläche | 70,09 m² |
Einfamilienhaus Typ Nicole mit Keller mit Walmdach

Grundrisse Hausbreite 11,07 m x 8,57 m
Wohn- und Nutzflächenberechnung:
| Wohnfläche im Erdgeschoss | 70,89 m² |
| Wohnfläche im Obergeschoss | 70,09 m² |
| Wohnfläche Total | 140,98 m² |
| Nutzfläche im Untergeschoss | 76,93 m² |
| Umbauter Raum | 923,00 m³ |