
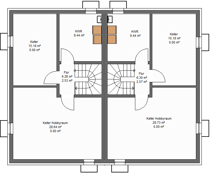
Keller Nutzfläche 55,96 m²

Keller Nutzfläche 55,96 m²

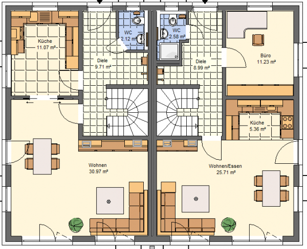
Erdgeschoss Wohnfläche 54,87 m²
Wohnflächenberechnung
| WC | 2,12 m² |
| Diele | 9,71 m² |
| Kochen | 11,07 m² |
| Wohnen / Essen | 30,97 m² |
| Wohnfläche EG gesamt | 54,87 m² |

Doppelhaus Typ Christine Obergeschoss
Wohnflächen:
| Bad | 9,29 m² |
| Kind 1 | 13,65 m² |
| Kind 2 | 11,49 m² |
| Schlafen | 15,84 m² |
| Flur | 3,27 m² |
| Wohnfläche im OG gesamt | 53,74 m² |

Das Doppelhaus Typ Christine mit Keller
Außenmaße 6,72m x 10,95 m
Dachneigung Flachdach
Wohnfläche 107,41 m²
Nutzfläche im Keller 55,96 m²