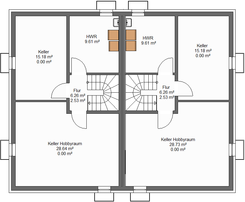
Untergeschoss DHH 123 MH

Nutzfläche : 55,96 m²
Untergeschoss DHH 123 MH

Nutzfläche : 55,96 m²
Erdgeschoss DHH 123 MH

Wohnflächenberechnung
| WC | 2,12 m² |
| Diele | 9,81 m² |
| Kochen | 11,23 m² |
| Wohnen / Essen | 30,10 m² |
| Wohnfläche | 56,26 m² |
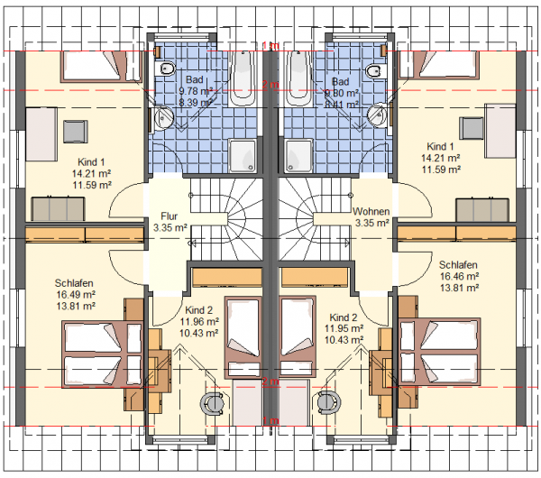
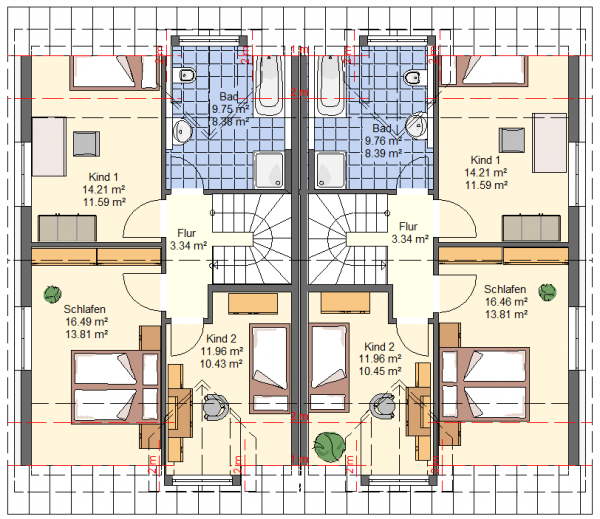
Obergeschoss Doppelhaushälfte Typ 123 Musterhaus

Wohnflächenberechnung:
Grundfläche ist die nutzbare Fläche ohne Flächenabzug unter den Dachschrägen
Wohnfläche ist die Flächenangabe nach Wohnflächenverordnung mit Flächenabzug unter den Dachschrägen
| Bad | 9,78 m² | 8,39 m² |
| Kind 1 | 14,21 m² | 11,59 m² |
| Kind 2 | 11,87 m²96 | 10,43 m² |
| Schlafen | 16,49 m² | 13,81 m² |
| Flur | 3,35 m² | 3,35 m² |
| Grundfläche | 55,79 m² | |
| Wohnfläche | 47,47 m² |
Doppelhaus 123 Musterhaus Spitzboden

| Grundfläche | 29,85 m² |
| Wohnfläche | 15,37 m² |
Doppelhaus Typ 123 Musterhaus (MH)

Grundrisse Hausbreite 6,72 m x 10,93 m
| Wohnfläche im Erdgeschoss | 53,26 m² |
| Grundfläche im Obergeschoss | 55,79 m² |
| Grundfläche gesamt EG und OG | 109,05 m² |
| Grundfläche im Spitzboden | 29,86 m² |
| Nutzfläche im Untergeschoss | 55,96 m² |