
Keller
Nutzfläche 55,96 m²

Keller
Nutzfläche 55,96 m²

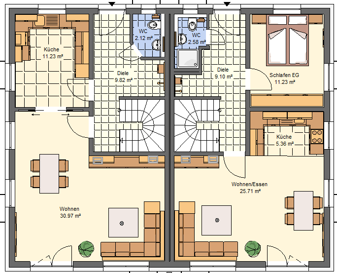
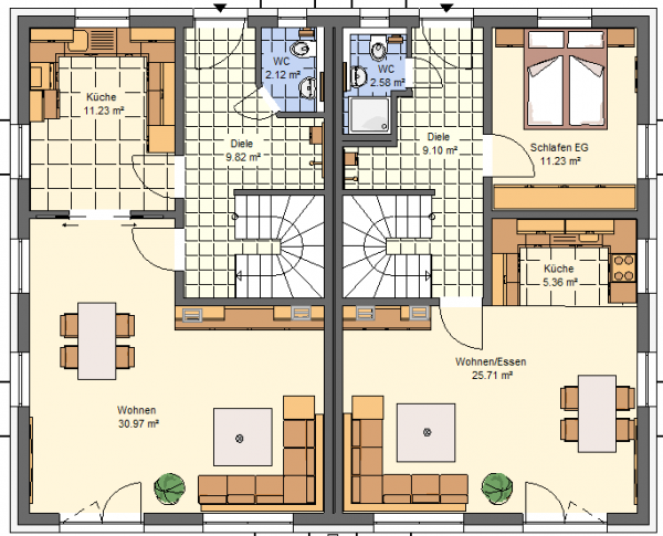
Erdgeschoss
Wohnfläche im Erdgeschoss 54,14 m²
| WC | 2,12 m² |
| Diele | 9,82 m² |
| Kochen | 11,23 m² |
| Wohnen / Essen | 30,97 m² |
| Wohnfläche EG gesamt | 54,14 m² |

Obergeschoss
Wohnfläche im Obergeschoss 53,65 m²
| Bad | 9,46 m² |
| Kind 1 | 13,65 m² |
| Kind 2 | 11,49 m² |
| Schlafen | 15,84 m² |
| Flur | 3,27 m² |
| Wohnfläche OG gesamt | 53,71 m² |

Doppelhaus Typ Janic mit Satteldach mit Keller
Außenmaße einer Doppelhaushälfte 6,72 m x 10,95 m
Dachneigung 20 Grad
Wohnfläche 107,85 m²
Nutzfläche im Keller 55,96 m²