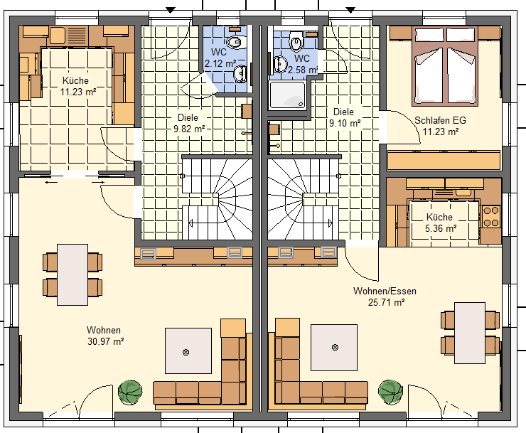
Doppelhaus Typ Janic 38° DN mit Keller

Doppelhaus Typ Janic mit Keller
Außenmaße einer Doppelhaushälfte 6,72 m x 10,95 m
mit ausgebautem Dachgeschoss
Dachneigung 38 Grad
Wohnfläche 143,74 m²
Grundfläche 165,12 m²
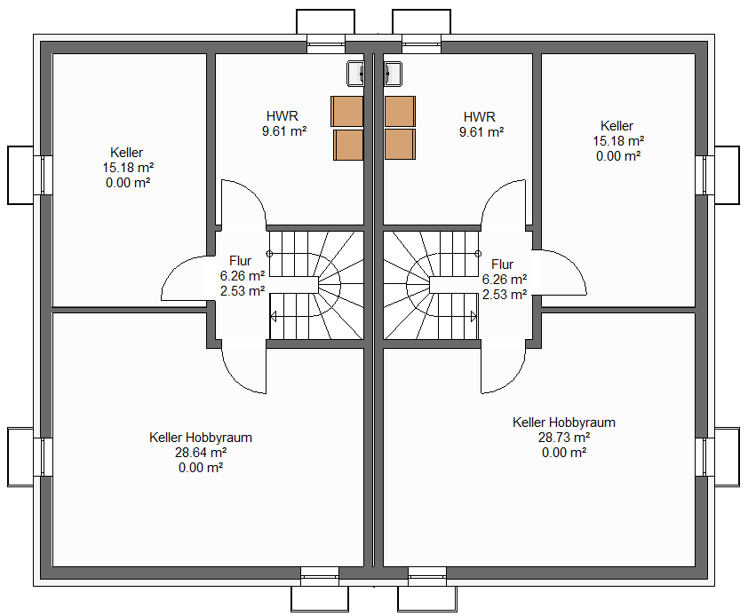
Nutzfläche im Keller 55,96 m²

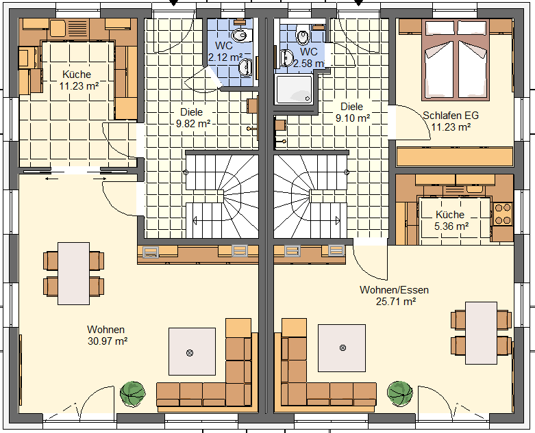
Doppelhaus Typ Janic mit Keller
Außenmaße einer Doppelhaushälfte 6,72 m x 10,95 m
mit ausgebautem Dachgeschoss
Dachneigung 38 Grad
Wohnfläche 143,74 m²
Grundfläche 165,12 m²
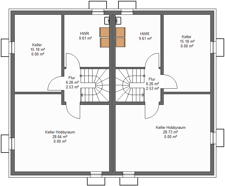
Nutzfläche im Keller 55,96 m²