
Erdgeschoss Doppelhaus Typ 112 Optimal mit Bodenplatte
Wohnflächenberechnung
| WC | 2,12 m² |
| Diele | 9,82 m² |
| Kochen | 6,54 m² |
| Wohnen/Essen | 26,71 m² |
| HWR Technik | 4,39 m² |
| Wohnfläche EG gesamt | 49,39 m² |

Erdgeschoss Doppelhaus Typ 112 Optimal mit Bodenplatte
Wohnflächenberechnung
| WC | 2,12 m² |
| Diele | 9,82 m² |
| Kochen | 6,54 m² |
| Wohnen/Essen | 26,71 m² |
| HWR Technik | 4,39 m² |
| Wohnfläche EG gesamt | 49,39 m² |

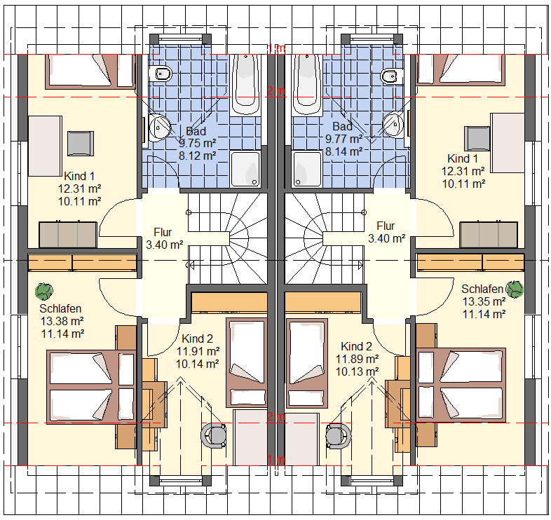
Obergeschoss Doppelhaus Typ 112 Optimal mit Bodenplatte
Wohnflächenberechnung
| Grundfläche | Wohnfläche | |
| Bad | 9,75 m² | 8,12 m² |
| Kind 1 | 12,31 m² | 10,11 m² |
| Kind 2 | 11,91 m² | 10,14 m² |
| Schlafen | 13,38 m² | 11,14 m² |
| Flur | 3,40 m² | 3,40 m² |
| gesamt | 50,75 m² | 42,91 m² |

Spitzboden Doppelhaus Typ 112 Optimal mit Bodenplatte
Wohnflächenberechnung
| Grundfläche | Wohnfläche | |
| gesamt |
27,2 02 m² |
13,81 m² |

Doppelhaus Typ 112 "Optimal" mit Bodenplatte
Grundrisse Hausbreite 6,23 m x 10,95 m
Wohnflächenberechnung:
| Grundfläche |
127,53 m2
|
| Wohnfläche |
106,30 m²
|
|
|
|
| Überbaute Fläche ca. |
68,00 m2
|
| Umbauter Raum ca. |
460,00 m3
|