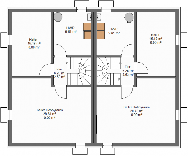
DHH 123 DG - Untergeschoss

Nutzflächenberechnung: 55,97 m²
DHH 123 DG - Untergeschoss

Nutzflächenberechnung: 55,97 m²
DHH 123 DG Erdgeschoss

Wohn- und Nutzflächenberechnung:
| WC | 2,12 m² |
| Diele | 9,80 m² |
| Kochen | 11,23 m² |
| Wohnen / Essen | 31,49 m² |
| Wohnfläche | 54,64 m² |
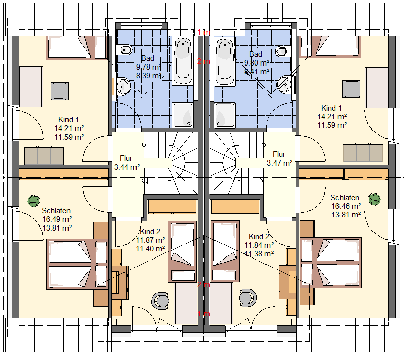
DHH 123 DG - Obergeschoss

Wohn- und Nutzflächenberechnung:
Grundfläche ist die nutzbare Fläche ohne Flächenabzug unter den Dachschrägen
Wohnfläche nach Wohnflächenverordnung mit Flächenabzug unter den Dachschrägen
| Bad | 9,24 m² | 8,37 m² |
| Kind 1 | 14,21 m² | 11,58 m² |
| Kind 2 | 11,87 m² | 11,40 m² |
| Schlafen | 16,49 m² | 13,18 m² |
| Flur | 3,43 m² | 3,43 m² |
| Grundfläche | 55,94 m² | |
| Wohnfläche | 47,97 m² |
DHH 123 - Spitzboden

Wohnflächenberechnung:
| Grundfläche | 29,86 m² |
| Wohnfläche | 15,45 m² |

Doppelhaus Typ 123 "Junges Wohnen" DG
Grundrisse Hausbreite 6,72 m x 10,95 m
Wohn- und Nutzflächenberechnung:
| Grundfläche |
140,12 m2
|
| Wohnfläche |
117,90 m²
|
| Nutzfläche |
59,13 m2
|
| Überbaute Fläche ca. |
74,00 m2
|
| Umbauter Raum ca. |
679,00 m3
|