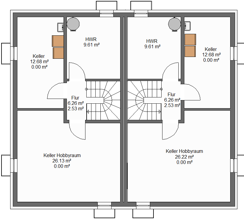
Doppelhaus "Junges Wohnen" (Typ 112) - Untergeschoss

Nutzflächenberechnung:
| Hauswirtschaftsraum |
9,61 m2
|
| Keller 1 |
12,68 m2
|
| Keller Hobby |
26,13 m2
|
|
|
|
| Vorraum |
6,26m2
|
| Nutzfläche |
50,95 m2
|

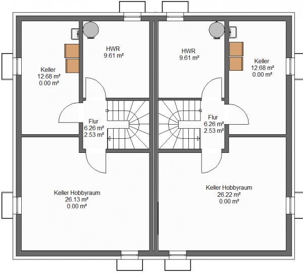
Nutzflächenberechnung:
| Hauswirtschaftsraum |
9,61 m2
|
| Keller 1 |
12,68 m2
|
| Keller Hobby |
26,13 m2
|
|
|
|
| Vorraum |
6,26m2
|
| Nutzfläche |
50,95 m2
|

Wohnflächenberechnung:
| WC |
2,12 m2
|
| Diele |
9,82 m2
|
| Kochen |
9,38 m2
|
| Wohnen/Essen |
28,42 m2
|
|
|
|
| Wohnfläche |
49,74 m2
|

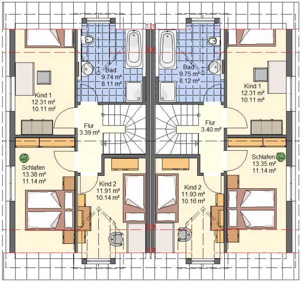
Wohnflächenberechnung:
Grundfläche ist die nutzbare Fläche ohne Flächenabzug unter den dachschrägen
Wohnfläche gemäß Wohnflächenverordnung mit Flächenabzug unter den Dachschrägen
| Bad | 9,94 m² | 8,12,m² |
| Kind 1 | 12,31 m² | 10,11 m² |
| Kind 2 | 11,91 m² | 10,14 m² |
| Schlafen | 13,88 m² | 11,14 m² |
| Flur | 3,39 m² | 3,39 m² |
| Grundfläche | 50,93 m² | |
| Wohnfläche | 42,09 m² |

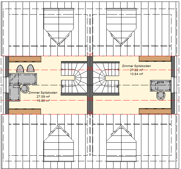
Wohnflächenberechnung:
| Grundfläche | 27,22 m² |
| Wohnfläche | 13,84 m² |

Doppelhaushälfte Typ 112 Junges Wohnen 6,72 m x 10,95 m
Wohn- und Nutzflächenberechnung:
| Grundfläche mit Spitzboden |
127,89 m2
|
| Wohnfläche mit Spitzboden |
106,48 m²
|
| Nutzfläche |
55,96 m2
|
| Überbaute Fläche ca. |
74,00 m2
|
| Umbauter Raum ca. |
687,00 m3
|